当前位置 : 安博(中国)一站式服务平台 > 装修案例 > 东方现代美-142平米-轻奢新中式效果图

东方现代美-142平米-轻奢新中式效果图

浏览人数: 7435次 更新时间: 2022-01-19

设计理念

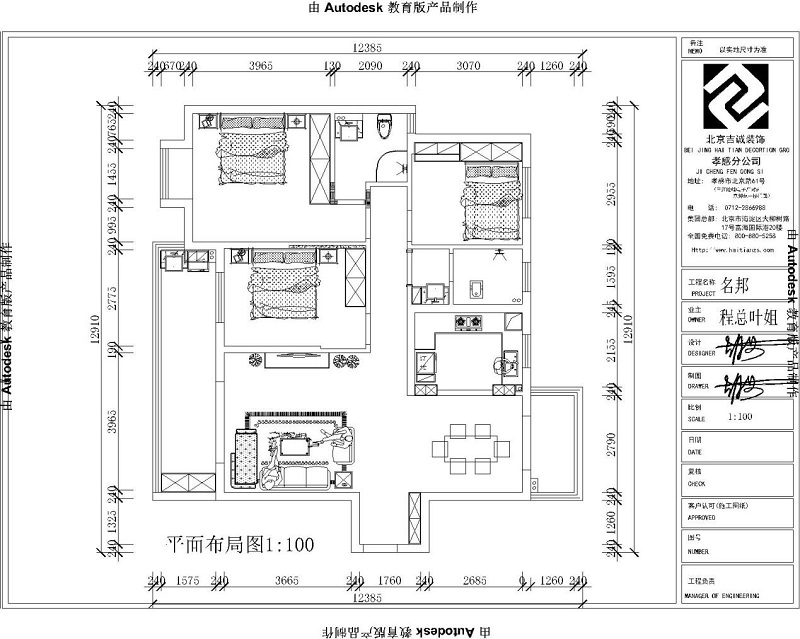
东方现代美-142平米-轻奢新中式效果图-装修效果图 查看相似效果图 东方现代美-142平米-轻奢新中式效果图

东方现代美-142平米-轻奢新中式效果图-装修效果图

东方现代美-142平米-轻奢新中式效果图-装修效果图 查看相似效果图 东方现代美-142平米-轻奢新中式效果图

东方现代美-142平米-轻奢新中式效果图-装修效果图

东方现代美-142平米-轻奢新中式效果图-装修效果图 查看相似效果图 东方现代美-142平米-轻奢新中式效果图

东方现代美-142平米-轻奢新中式效果图-装修效果图

本案例是由孝感装修公司资深设计师设计

  免费电话申请:4001529288
本案例服务团队

装修无忧 0元报价

* 免费电话申请: 4001529288

热门案例

家装资讯