当前位置 : 安博(中国)一站式服务平台 > 装修案例 > 百强世纪城-140-新中式装饰效果图

百强世纪城-140-新中式装饰效果图

浏览人数: 9105次 更新时间: 2022-01-17

设计理念

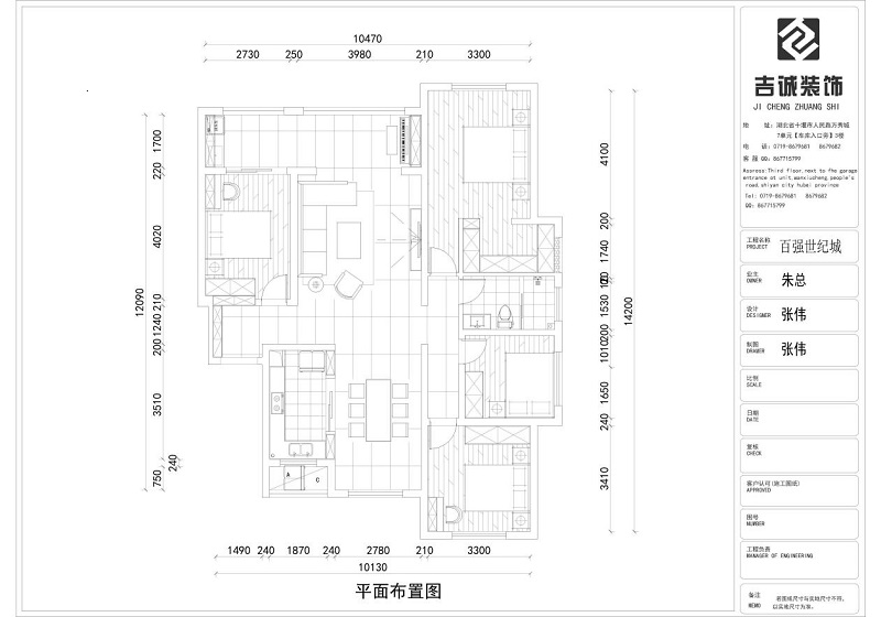
百强世纪城-140-新中式装饰效果图-装修效果图 查看相似效果图 百强世纪城-140-新中式装饰效果图

百强世纪城-140-新中式装饰效果图-装修效果图

百强世纪城-140-新中式装饰效果图-装修效果图 查看相似效果图 百强世纪城-140-新中式装饰效果图

百强世纪城-140-新中式装饰效果图-装修效果图

百强世纪城-140-新中式装饰效果图-装修效果图 查看相似效果图 百强世纪城-140-新中式装饰效果图

百强世纪城-140-新中式装饰效果图-装修效果图

本案例是由十堰装修公司资深设计师设计

  免费电话申请:4001529288
本案例服务团队
 张伟  装修设计师
设计师: 张伟

主任设计师

经验: 12年 作品:42套

擅长风格:现代简约,新中式,法式,北欧,美式

装修无忧 0元报价

* 免费电话申请: 4001529288

热门案例

家装资讯