当前位置 : 安博(中国)一站式服务平台 > 装修案例 > 江屿城-135-简约设计

江屿城-135-简约设计

浏览人数: 5803次 更新时间: 2022-01-15

设计理念

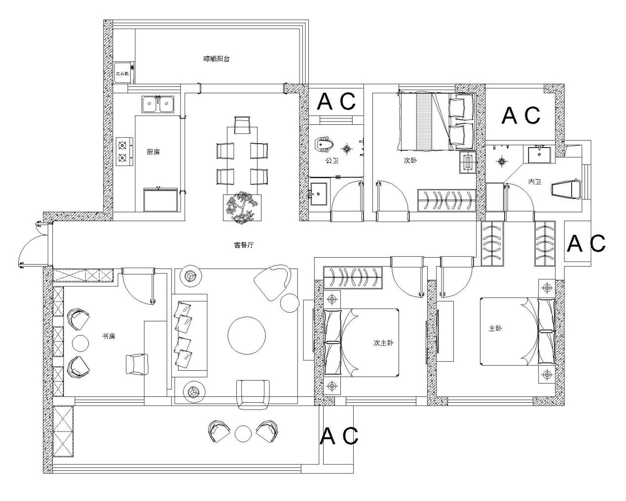
江屿城-135-简约设计-装修效果图 查看相似效果图 江屿城-135-简约设计

江屿城-135-简约设计-装修效果图

江屿城-135-简约设计-装修效果图 查看相似效果图 江屿城-135-简约设计

江屿城-135-简约设计-装修效果图

江屿城-135-简约设计-装修效果图 查看相似效果图 江屿城-135-简约设计

江屿城-135-简约设计-装修效果图

本案例是由十堰装修公司资深设计师设计

  免费电话申请:4001529288
本案例服务团队

装修无忧 0元报价

* 免费电话申请: 4001529288

热门案例

家装资讯