当前位置 : 安博(中国)一站式服务平台 > 装修案例 > 沁园-90平米-现代极简风格

沁园-90平米-现代极简风格

浏览人数: 7556次 更新时间: 2022-01-14

设计理念

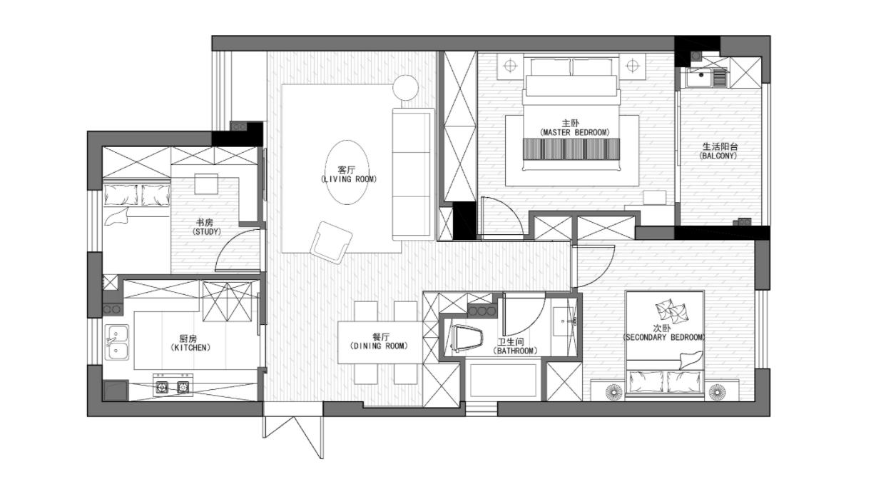
1、 全屋户型并没有做太大变动,为了满足业主今后的使用需求,以突出居住空间为主,做了一个休憩房间。

2 为保证厨房的实用性,将厨房原墙做了退后处理,获得了一个u字型的厨房空间。

3、 全屋的收纳是设计的重点,由于没有独立的储藏室空间,因此在餐厅、过道、卧室中都加入了很多细节来拓展收纳。


沁园-90平米-现代极简风格-装修效果图 查看相似效果图 沁园-90平米-现代极简风格

沁园-90平米-现代极简风格-装修效果图

沁园-90平米-现代极简风格-装修效果图 查看相似效果图 沁园-90平米-现代极简风格

沁园-90平米-现代极简风格-装修效果图

沁园-90平米-现代极简风格-装修效果图 查看相似效果图 沁园-90平米-现代极简风格

沁园-90平米-现代极简风格-装修效果图

沁园-90平米-现代极简风格-装修效果图 查看相似效果图 沁园-90平米-现代极简风格

沁园-90平米-现代极简风格-装修效果图

沁园-90平米-现代极简风格-装修效果图 查看相似效果图 沁园-90平米-现代极简风格

沁园-90平米-现代极简风格-装修效果图

本案例是由鄂州装修公司资深设计师设计

  免费电话申请:4001529288
本案例服务团队
 叶煜诚  装修设计师
设计师: 叶煜诚

首席设计师

经验: 11年 作品:15套

擅长风格:现代简约,新中式,法式,北欧,美式,地中海式

装修无忧 0元报价

* 免费电话申请: 4001529288

热门案例

家装资讯