当前位置 : 安博(中国)一站式服务平台 > 装修案例 > 私宅装饰|刘伟设计师案例

私宅装饰|刘伟设计师案例

浏览人数: 7168次 更新时间: 2022-01-14

设计理念

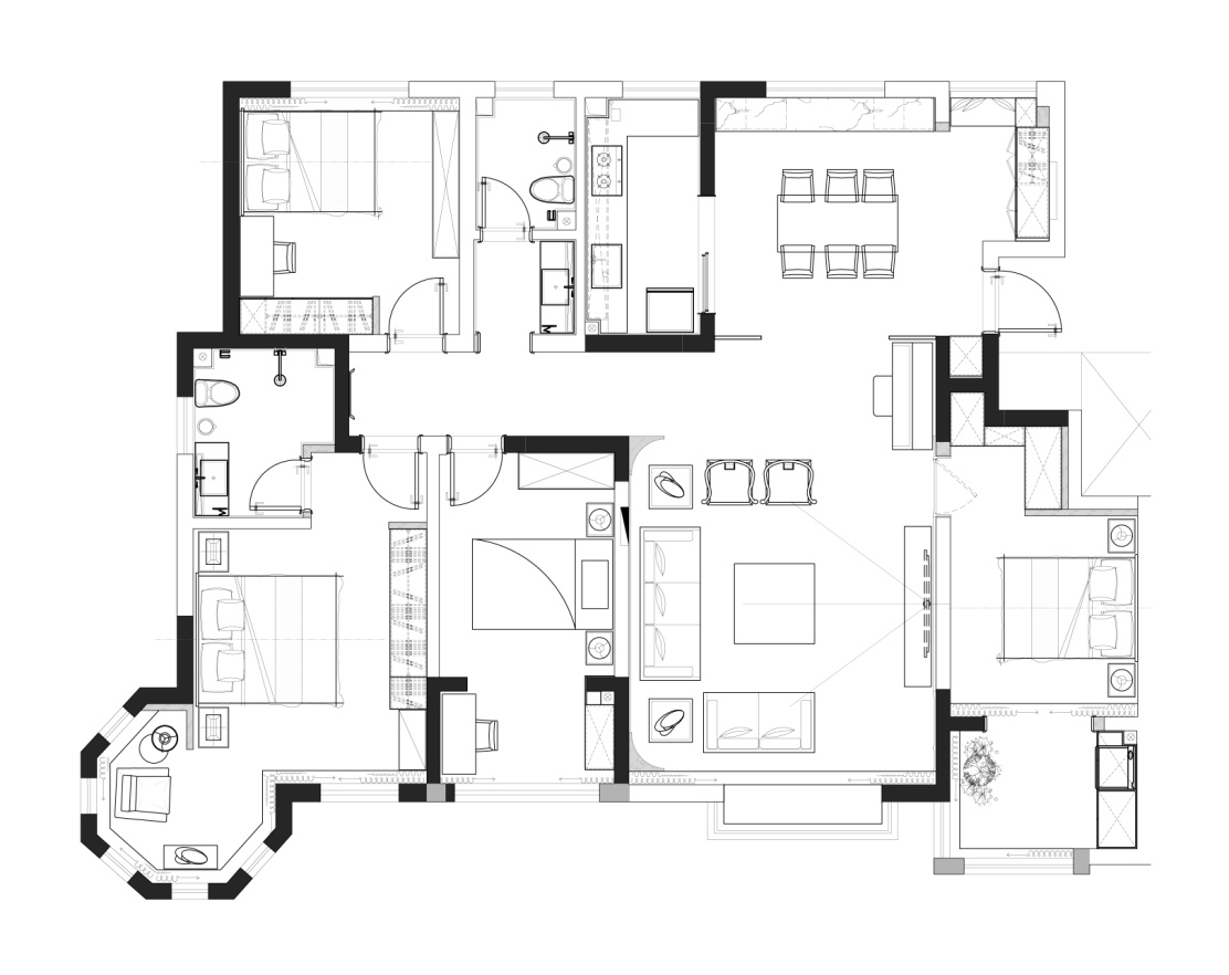
▼收纳

 1.在增加收纳的情况下,也要保证每个空间的趣味性。利用原来的外机区域,打造一个可以收纳满满的玄关储物柜。

 2.餐厅靠窗的餐边柜,根据不同的用法可以转换不同的空间功能,又能保证强大的收纳功能

玄关

利用原来的外机区域,规划出来一个玄关衣帽间的位置,解决了进门储物的问题,并且缓解了日常收纳的压力。没有任何造型的平板门,简洁大气。

客厅

沙发背景墙硬包铺贴壁布,两侧半圆弧设计,更有一种包容万物的感觉。客厅的沙发像书卷卷轴一样的靠枕,打造中国独特的富有书卷气的生活空间。

餐厅

餐厅用的是百叶帘,透过宽宽的百叶打进来的阳光总是那么柔和就像妈妈带给孩子的温暖一样。 厨房用的是长虹玻璃门,细细的波纹打造不一样的光影感觉。

靠窗而做的餐边柜,可以作为日常工作的早餐台,可以作为周末休息时的料理台,不同的使用功能赋予了空间更多可能。

主卧

不同于客餐厅的新中式的风格,卧室想要营造的感觉是舒适自然的,褪掉一天工作的辛苦和劳累,拥有一个舒适的空间可以休息补充力量。

整面墙的衣柜,把四季的衣物都收纳起来,时尚简约的门板造型,金色的拉手,都是点点滴滴构成喜爱的家的模样。

过道

通过过道对区域的划分,划分为客厅,餐厅的区域。厨房的推拉门是长虹玻璃门,在视觉上更为通透。

私宅装饰|刘伟设计师案例-装修效果图 查看相似效果图 私宅装饰|刘伟设计师案例

私宅装饰|刘伟设计师案例-装修效果图

私宅装饰|刘伟设计师案例-装修效果图 查看相似效果图 私宅装饰|刘伟设计师案例

私宅装饰|刘伟设计师案例-装修效果图

私宅装饰|刘伟设计师案例-装修效果图 查看相似效果图 私宅装饰|刘伟设计师案例

私宅装饰|刘伟设计师案例-装修效果图

私宅装饰|刘伟设计师案例-装修效果图 查看相似效果图 私宅装饰|刘伟设计师案例

私宅装饰|刘伟设计师案例-装修效果图

私宅装饰|刘伟设计师案例-装修效果图 查看相似效果图 私宅装饰|刘伟设计师案例

私宅装饰|刘伟设计师案例-装修效果图

私宅装饰|刘伟设计师案例-装修效果图 查看相似效果图 私宅装饰|刘伟设计师案例

私宅装饰|刘伟设计师案例-装修效果图

本案例是由鄂州装修公司资深设计师设计

  免费电话申请:4001529288
本案例服务团队
 刘伟  装修设计师
设计师: 刘伟

首席设计师

经验: 13年 作品:20套

擅长风格:现代简约,新中式,法式,北欧,美式,地中海式

装修无忧 0元报价

* 免费电话申请: 4001529288

热门案例

家装资讯